截止閥

J41H、J41Y、J41W 國標截止閥的啟閉件是圓柱形的閥瓣,密封面呈平面或錐面,閥瓣沿流體的中心線作直線運動。國標截止閥只適用于全開和全關,一般不用來調節流量,定做時允許作調節和節流。
產品特點
1、結構簡單,制造和維修比較方便
2、工作行程小,啟閉時間短
3、密封性好,密封面間磨擦力小,壽命較長
執行標準
設計規范:GB/T 12235
結構長度:GB/T 12221
法蘭連接:JB/T 79
試驗與檢驗:JB/T 9002
產品標識:GB/T 12220
供貨規范:JB/T 7928
產品型號
產品性能規范
主要零件材質
主要外形連接尺寸
結構圖片

產品特點
1、結構簡單,制造和維修比較方便
2、工作行程小,啟閉時間短
3、密封性好,密封面間磨擦力小,壽命較長
執行標準
設計規范:GB/T 12235
結構長度:GB/T 12221
法蘭連接:JB/T 79
試驗與檢驗:JB/T 9002
產品標識:GB/T 12220
供貨規范:JB/T 7928
產品型號
| 閥體材質 | 型號 |
| WCB | J41H/Y-16C |
| J41H/Y-25 | |
| J41H/Y-40 | |
| J41H/Y-64 | |
| J41H/Y-100 | |
| CF8 | J41W-16P |
| J41W-25P | |
| J41W-40P | |
| J41W-64P | |
| J41W-100P | |
| CF3 | J41W-16R |
| J41W-25R | |
| J41W-40R | |
| J41W-64R | |
| J41W-100R |
產品性能規范
| 國標截止閥主要性能規范 | ||||
| 公稱壓力(Mpa) | 實驗壓力 | 工作溫度(℃) | ||
| 強度(水)(Mpa) | 密封(水)空氣 | 低壓密封空氣(Mpa) | ||
| 1.6 | 2.4 | 1.76 | 0.6 | 350 |
| 2.5 | 3.75 | 3.75 | 0.6 | |
| 4 | 6 | 4.4 | 0.6 | |
| 6.4 | 9.6 | 7.04 | 0.6 | |
| 10 | 15 | 11 | 0.6 | |
主要零件材質
| 國標截止閥主要零件材質 | |||
| 零件名稱 | 材質 | ||
| 閥體/閥蓋 | WCB | CF8 | CF3 |
| 閥瓣 | WCB | CF8 | CF3 |
| 閥桿 | 13Cr | 304SS | 316SS |
| 填料 | 柔性石墨 | PTFE編織 | PTFE編織 |
| 墊片 | 304L+石墨 | 304L+PTFE | 316L+PTFE |
| 壓蓋 | WCB | CF8 | CF3 |
| 填料壓環 | WCB | CF8 | CF8 |
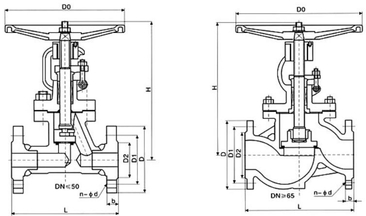
主要外形連接尺寸
| PN16國標截止閥外形及結構尺寸 (mm) | ||||||||
| DN | L | D | D1 | D2 | b | zxd | H | D0 |
| 10 | 130 | 90 | 60 | 40 | 14 | 4x14 | 198 | 120 |
| 15 | 130 | 95 | 65 | 45 | 14 | 4x14 | 200 | 120 |
| 20 | 150 | 105 | 75 | 55 | 14 | 4x14 | 243 | 140 |
| 25 | 160 | 115 | 85 | 65 | 14 | 4x14 | 253 | 160 |
| 32 | 180 | 135 | 100 | 78 | 15 | 4x18 | 280 | 160 |
| 40 | 200 | 145 | 110 | 85 | 16 | 4x18 | 312 | 200 |
| 50 | 230 | 160 | 125 | 100 | 16 | 4x18 | 321 | 200 |
| 65 | 290 | 180 | 145 | 120 | 18 | 4x18 | 325 | 240 |
| 80 | 310 | 195 | 160 | 135 | 20 | 4x18 | 355 | 240 |
| 100 | 350 | 215 | 180 | 155 | 20 | 4x18 | 415 | 280 |
| 125 | 400 | 245 | 210 | 185 | 22 | 4x18 | 460 | 320 |
| 150 | 480 | 280 | 240 | 210 | 24 | 8x23 | 510 | 360 |
| 200 | 600 | 335 | 295 | 265 | 26 | 12x23 | 590 | 360 |
| PN25 國標截止閥外形及結構尺寸 (mm) | ||||||||
| DN | L | D | D1 | D2 | b | zxd | H | D0 |
| 10 | 130 | 90 | 60 | 40 | 16 | 4x14 | 198 | 120 |
| 15 | 130 | 95 | 65 | 45 | 16 | 4x14 | 233 | 120 |
| 20 | 150 | 105 | 75 | 55 | 16 | 4x14 | 275 | 140 |
| 25 | 160 | 115 | 85 | 65 | 16 | 4x14 | 285 | 160 |
| 32 | 180 | 135 | 100 | 78 | 18 | 4x18 | 302 | 180 |
| 40 | 20ā0 | 145 | 110 | 85 | 18 | 4x18 | 355 | 200 |
| 50 | 230 | 160 | 125 | 100 | 20 | 4x18 | 362 | 240 |
| 65 | 290 | 180 | 145 | 120 | 22 | 8x18 | 325 | 280 |
| 80 | 310 | 195 | 160 | 135 | 22 | 8x18 | 369 | 280 |
| 100 | 350 | 230 | 190 | 165 | 24 | 8x23 | 370 | 300 |
| 125 | 400 | 270 | 220 | 188 | 28 | 8x18 | 558 | 400 |
| 150 | 480 | 300 | 250 | 218 | 30 | 8x23 | 611 | 400 |
| 200 | 600 | 360ā | 310 | 278 | 34 | 12x25 | 721 | 400 |
| PN40 國標截止閥外形及結構尺寸 (mm) | ||||||||
| DN | L | D | D1 | D2 | b | zxd | H | D0 |
| 10 | 130 | 90 | 60 | 40 | 16 | 4x14 | 198 | 120 |
| 15 | 130 | 95 | 65 | 45 | 16 | 4x14 | 233 | 120 |
| 20 | 150 | 105 | 75 | 55 | 16 | 4x14 | 275 | 140 |
| 25 | 160 | 115 | 85 | 65 | 16 | 4x14 | 285 | 160 |
| 32 | 180 | 135 | 100 | 78 | 18 | 4x18 | 302 | 160 |
| 40 | 200 | 145 | 110 | 85 | 18 | 4x18 | 355 | 200 |
| 50 | 230 | 160 | 125 | 100 | 20 | 4x18 | 373 | 240 |
| 65 | 290 | 180 | 145 | 120 | 22 | 8x18 | 408 | 280 |
| 80 | 310 | 195 | 160 | 135 | 22 | 8x18 | 436 | 320 |
| 100 | 350 | 230 | 190 | 160 | 24 | 8x23 | 480 | 360 |
| 125 | 400 | 270 | 220 | 188 | 28 | 8x25 | 558 | 400 |
| 150 | 480 | 300 | 250 | 218 | 30 | 8x25 | 611 | 400 |
| PN64國標截止閥外形及結構尺寸 (mm) | ||||||||
| DN | L | D | D1 | D2 | b | zxd | H | D0 |
| 15 | 170 | 105 | 75 | 55 | 18 | 4x14 | 148 | 100 |
| 20 | 190 | 125 | 90 | 68 | 20 | 4x18 | 150 | 100 |
| 25 | 210 | 135 | 100 | 78 | 22 | 4x18 | 175 | 120 |
| 32 | 230 | 150 | 110 | 82 | 24 | 4x23 | 200 | 140 |
| 40 | 260 | 165 | 125 | 95 | 24 | 4x23 | 231 | 160 |
| 50 | 300 | 175 | 135 | 105 | 26 | 4x23 | 262 | 180 |
| 65 | 340 | 200 | 160 | 130 | 28 | 8x23 | 450 | 320 |
| 80 | 380 | 210 | 170 | 140 | 30 | 8x23 | 485 | 360 |
| 100 | 430 | 250 | 200 | 168 | 30 | 8x25 | 537 | 400 |
| 150 | 550 | 340 | 280 | 240 | 38 | 8x34 | 646 | 450 |
| PN100 國標截止閥外形及結構尺寸 (mm) | ||||||||
| DN | L | D | D1 | D2 | b | zxd | H | D0 |
| 10 | 170 | 100 | 70 | 50 | 20 | 4x14 | 180 | 100 |
| 15 | 170 | 105 | 75 | 55 | 20 | 4x14 | 195 | 120 |
| 20 | 190 | 125 | 90 | 68 | 22 | 4x18 | 228 | 120 |
| 25 | 210 | 135 | 100 | 78 | 24 | 4x18 | 250 | 160 |
| 32 | 230 | 150 | 110 | 82 | 24 | 4x23 | 326 | 200 |
| 40 | 260 | 165 | 125 | 95 | 26 | 4x23 | 359 | 240 |
| 50 | 300 | 195 | 145 | 112 | 28 | 4x25 | 414 | 280 |
| 65 | 340 | 220 | 170 | 138 | 32 | 8x25 | 434 | 320 |
| 80 | 380 | 230 | 180 | 148 | 34 | 8x25 | 547 | 400 |
| 100 | 430 | 265 | 210 | 172 | 38 | 8x30 | 621 | 450 |
| 125 | 500 | 310 | 250 | 210 | 42 | 8x34 | 750 | 500 |
| 150 | 550 | 350 | 290 | 250 | 46 | 12x34 | 840 | 550 |
| 200 | 650 | 430 | 360 | 312 | 54 | 12x41 | 925 | 550 |
| 250 | 775 | 500 | 430 | 382 | 60 | 12x41 | 1015 | 600 |
| 300 | 900 | 585 | 500 | 442 | 70 | 12x48 | 1200 | 600 |
結構圖片






