電動截止閥

電動截止閥概述
電動截止閥和法蘭閘閥是同屬一個類型的閥門,由電動執行機構或氣動執行機構和截止閥兩部分組成,區別在它的關閉件是個閥體,閥體繞閥體中心線作旋轉來達到開啟、關閉的一種閥門。 閘閥在管路中主要用來做切斷、分配和改變介質的流動方向。二片式球閥,三片式球閥,是近年來被廣泛采用的一種新型閥門。
二、電動截止閥主要用途
電動法蘭球閥連接的截止閥適用于公稱壓力PN1.6~16MPa,工作溫度-29~550℃的石油、化工、制藥、化肥、電力行業等各種工況的管路上,切斷或接通管路介質。驅動方式有手動、齒輪傳動、電動、氣動等。
三、電動截止閥結構特點
1、選材考究,符合國內、外相關標準,結構合理,造型美觀。
2、閥瓣、閥座密封面采用鐵基合金堆焊或司太立(Stellite)鈷基硬質合金堆焊而成,耐磨、耐高溫、耐腐蝕、抗擦傷性能好,使用壽命長。
3、閥桿經調質及表面氮化處理,有良好的抗腐蝕性和抗擦傷性。
4、可采用各種配管法蘭標準及法蘭密封面型式,滿足各種工程需要及用戶要求。
5、閥體材料品種齊全,填料、墊片可根據實際工況或用戶要求合理選配,能適用于各種壓力、溫度及介質工況。
6、倒密封采用螺紋連接密封座或本體堆焊奧氏體不銹鋼而成,密封可靠,更換填料可在不停機情況下進行,方便快捷,不影響系統運行。
7、配有DZW系列多回轉式電動裝置,具有殼體小,重量輕,功能全,并可與遠程電腦配套使用,也可按用戶要求選配電動裝置。
四、電動截止閥優點
1、結構簡單,制造和維修比較方便。
2、工作行程小,啟閉時間短。
3、密封性好,密封面間磨擦力小,壽命較長。
4、波紋管截止閥閥體的結構形式有直通式、直流式和直角式。直通式是最常見的結構,但其流體的阻力最大。直流式流體阻力較小,多用于含固體顆粒或粘度大的流體。直角式閥體多采用鍛造,適用于較小通經、較高壓力的的截止閥。
5、在開閉過程中密封面的摩擦力比閘閥小,耐磨。
6、通常只有一個密封面,制造工藝好,便于維修。
7、電動執行器方便操作。
五、電動截止閥分類
根據通道方向
1)直通式截止閥
2)直流式截止閥:在直流式或Y形截止閥中,閥體的流道與主流道成一斜線,這樣流動狀態的破壞程度比常規截止閥要小,因而通過閥門的壓力損失也相應的小了。
3)角式截止閥:在角式截止閥中,流體只需改變一次方向,以致于通過此閥門的壓力降比常規結構的截止閥小。
4)柱塞式截止閥:這種形式的截止閥是常規截止閥的變型。在該閥門中,閥瓣和閥座通常是基于柱塞原理設計的。閥瓣磨光成柱塞與閥桿相連接,密封是由套在柱塞上的兩個彈性密封圈實現的。兩個彈性密封圈用一個套環隔開,并通過由閥蓋螺母施加在閥蓋上的載荷把柱塞周圍的密封圈壓牢。彈性密封圈能夠更換,可以采用各種各樣的材料制成,該閥門主要用于“開”或者“關”,但是備有特制形式的柱塞或特殊的套環,也可以用于調節流量。
六、電動截止閥工作原理
電動截止閥,也叫電動截門,是使用最廣泛的一種閥門,與電動球閥是有區別的,它之所以廣受歡迎,是由于開閉過程中密封面之間摩擦力小,比較耐用,開啟高度不大,制造容易,維修方便,不僅適用于中低壓,而且適用于高壓。 電動截止閥的閉合原理是,依靠電動推力旋轉閥杠,使閥瓣密封面與閥座密封面緊密貼合,阻止介質流通。 電動截止閥只許介質單向流動,安裝時有方向性。截止閥的結構長度大于閘閥,同時流體阻力大,長期運行時,密封可靠性 不強。
七、電動截止閥安裝
電動截止閥,美標閘閥的工作原理是靠旋轉閥戀來使閥門暢通或閉塞。閘閥開關輕便,體積小,可以做成很大口徑,密封可靠,結構 簡單,維修方便,密封面與球面常在閉合狀態,不易被介質沖蝕,在各行業得到廣泛的應用。
電動截止閥在管路中主要用來做切斷、分配和改變介質的流動方向。電動截止閥是被廣泛采用的一種新型閥門,它具有以下優點:
1. 流體阻力小,其阻力系數與同長度的管段相等。
2. 結構簡單、體積小、重量輕。
3. 緊密可靠,閘閥的密封面材料廣泛使用塑料、密封性好,在真空系統中也已廣泛使用。
4. 操作方便,開閉迅速,從全開到全關只要旋轉90°,便于遠距離的控制。
5. 維修方便,閘閥結構簡單,密封圈一般都是活動的,拆卸更換都比較方便。
6. 在全開或全閉時,閘體和閥座的密封面與介質隔離,介質通過時,不會引起閥門密封面的侵蝕。 7. 適用范圍廣,通徑從小到幾毫米,大到幾米,從高真空至高壓力都可應用。 球旋轉90度時,在進、出口處應全部呈現球面,從而截斷流動。
八、注意事項
1、安裝閥門時注意介質的流向,嚴格按閥門流向箭頭指示的方向安裝。
2、閥門可安裝的管道的任何位置、同時根據介質和介質的溫度選擇碳鋼或合金鋼的閥門。
3、電動截止閥盡量垂直安裝,閥桿向上。
九、電動截止閥應用規范
十、電動截止閥主要零件材料及主要用途
十一、電動截止閥主要外形尺寸、連接尺寸及質量
電動截止閥和法蘭閘閥是同屬一個類型的閥門,由電動執行機構或氣動執行機構和截止閥兩部分組成,區別在它的關閉件是個閥體,閥體繞閥體中心線作旋轉來達到開啟、關閉的一種閥門。 閘閥在管路中主要用來做切斷、分配和改變介質的流動方向。二片式球閥,三片式球閥,是近年來被廣泛采用的一種新型閥門。
二、電動截止閥主要用途
電動法蘭球閥連接的截止閥適用于公稱壓力PN1.6~16MPa,工作溫度-29~550℃的石油、化工、制藥、化肥、電力行業等各種工況的管路上,切斷或接通管路介質。驅動方式有手動、齒輪傳動、電動、氣動等。
三、電動截止閥結構特點
1、選材考究,符合國內、外相關標準,結構合理,造型美觀。
2、閥瓣、閥座密封面采用鐵基合金堆焊或司太立(Stellite)鈷基硬質合金堆焊而成,耐磨、耐高溫、耐腐蝕、抗擦傷性能好,使用壽命長。
3、閥桿經調質及表面氮化處理,有良好的抗腐蝕性和抗擦傷性。
4、可采用各種配管法蘭標準及法蘭密封面型式,滿足各種工程需要及用戶要求。
5、閥體材料品種齊全,填料、墊片可根據實際工況或用戶要求合理選配,能適用于各種壓力、溫度及介質工況。
6、倒密封采用螺紋連接密封座或本體堆焊奧氏體不銹鋼而成,密封可靠,更換填料可在不停機情況下進行,方便快捷,不影響系統運行。
7、配有DZW系列多回轉式電動裝置,具有殼體小,重量輕,功能全,并可與遠程電腦配套使用,也可按用戶要求選配電動裝置。
四、電動截止閥優點
1、結構簡單,制造和維修比較方便。
2、工作行程小,啟閉時間短。
3、密封性好,密封面間磨擦力小,壽命較長。
4、波紋管截止閥閥體的結構形式有直通式、直流式和直角式。直通式是最常見的結構,但其流體的阻力最大。直流式流體阻力較小,多用于含固體顆粒或粘度大的流體。直角式閥體多采用鍛造,適用于較小通經、較高壓力的的截止閥。
5、在開閉過程中密封面的摩擦力比閘閥小,耐磨。
6、通常只有一個密封面,制造工藝好,便于維修。
7、電動執行器方便操作。
五、電動截止閥分類
根據通道方向
1)直通式截止閥
2)直流式截止閥:在直流式或Y形截止閥中,閥體的流道與主流道成一斜線,這樣流動狀態的破壞程度比常規截止閥要小,因而通過閥門的壓力損失也相應的小了。
3)角式截止閥:在角式截止閥中,流體只需改變一次方向,以致于通過此閥門的壓力降比常規結構的截止閥小。
4)柱塞式截止閥:這種形式的截止閥是常規截止閥的變型。在該閥門中,閥瓣和閥座通常是基于柱塞原理設計的。閥瓣磨光成柱塞與閥桿相連接,密封是由套在柱塞上的兩個彈性密封圈實現的。兩個彈性密封圈用一個套環隔開,并通過由閥蓋螺母施加在閥蓋上的載荷把柱塞周圍的密封圈壓牢。彈性密封圈能夠更換,可以采用各種各樣的材料制成,該閥門主要用于“開”或者“關”,但是備有特制形式的柱塞或特殊的套環,也可以用于調節流量。
六、電動截止閥工作原理
電動截止閥,也叫電動截門,是使用最廣泛的一種閥門,與電動球閥是有區別的,它之所以廣受歡迎,是由于開閉過程中密封面之間摩擦力小,比較耐用,開啟高度不大,制造容易,維修方便,不僅適用于中低壓,而且適用于高壓。 電動截止閥的閉合原理是,依靠電動推力旋轉閥杠,使閥瓣密封面與閥座密封面緊密貼合,阻止介質流通。 電動截止閥只許介質單向流動,安裝時有方向性。截止閥的結構長度大于閘閥,同時流體阻力大,長期運行時,密封可靠性 不強。
七、電動截止閥安裝
電動截止閥,美標閘閥的工作原理是靠旋轉閥戀來使閥門暢通或閉塞。閘閥開關輕便,體積小,可以做成很大口徑,密封可靠,結構 簡單,維修方便,密封面與球面常在閉合狀態,不易被介質沖蝕,在各行業得到廣泛的應用。
電動截止閥在管路中主要用來做切斷、分配和改變介質的流動方向。電動截止閥是被廣泛采用的一種新型閥門,它具有以下優點:
1. 流體阻力小,其阻力系數與同長度的管段相等。
2. 結構簡單、體積小、重量輕。
3. 緊密可靠,閘閥的密封面材料廣泛使用塑料、密封性好,在真空系統中也已廣泛使用。
4. 操作方便,開閉迅速,從全開到全關只要旋轉90°,便于遠距離的控制。
5. 維修方便,閘閥結構簡單,密封圈一般都是活動的,拆卸更換都比較方便。
6. 在全開或全閉時,閘體和閥座的密封面與介質隔離,介質通過時,不會引起閥門密封面的侵蝕。 7. 適用范圍廣,通徑從小到幾毫米,大到幾米,從高真空至高壓力都可應用。 球旋轉90度時,在進、出口處應全部呈現球面,從而截斷流動。
八、注意事項
1、安裝閥門時注意介質的流向,嚴格按閥門流向箭頭指示的方向安裝。
2、閥門可安裝的管道的任何位置、同時根據介質和介質的溫度選擇碳鋼或合金鋼的閥門。
3、電動截止閥盡量垂直安裝,閥桿向上。
九、電動截止閥應用規范
| 檢驗與試驗 | JB/ T9092 | |
| 材 料 | 碳鋼 | GB/ T12229 |
| 不銹鋼 | GB/ T12230 | |
| 合金鋼 | Q/ ZB66 | |
| 標 志 | GB/ T12220 | |
| 供 貨 | JB/ T7928 | |
十、電動截止閥主要零件材料及主要用途
| 閥體 | 閥蓋 | 閥瓣 | 密封圈 | 閥桿 | 填料 | 適用介質 | 適用溫度 (≤℃) |
| WCB | WCB+D507MO | D577 | 2Crl3 | 柔性石墨 | 水、油品、蒸汽 | 425 | |
| ZGlCrl8Ni9Ti | 0Crl8Ni9Ti+ | Stellite6 | lCrl8Ni9Ti | PTFE | 硝酸類 | 200 | |
| Stellite12 | |||||||
| ZGlCrl8Ni2Mo2Ti | CF8M+ | lCrl8Ni2Mo2Ti | lCrl8Ni2Mo2Ti | PTFE | 磷酸類、 | 200 | |
| Stellite12 | 堿類、混酸 | ||||||
| ZG00Crl7Nil4M02 | CF3M+ | Stel1ite6 | 316L | PTFE | 磷酸類、 | 200 | |
| Stellite12 | 尿素、甲銨液 | ||||||
| ZGlCr5MO | ZGlCr5MO+ | Stel1ite6 | 25Cr2Mo1VA | 柔性石墨 | 水、油品、蒸汽 | 550 | |
| Stellite12 | |||||||
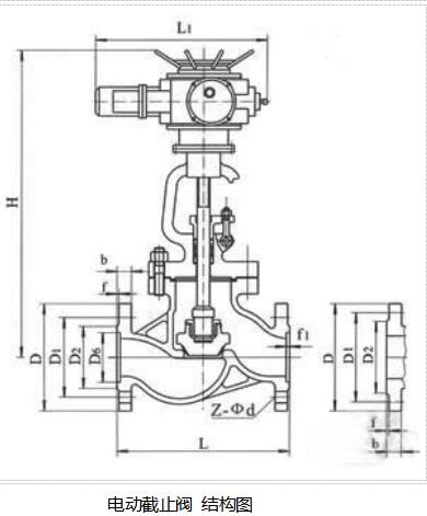
十一、電動截止閥主要外形尺寸、連接尺寸及質量
| 公稱壓力 PN(MPa) | 公稱通徑 DN(mm) | 標準值 | 參考值 | ||||||||||
| L | D | D1 | n2 | D6 | b | f | f1 | Z-φd | L1 | H | 質量(kg) | ||
| 1.6 | 50 | 230 | 160 | 125 | 100 | 16 | 3 | 4-φ18 | 590 | 645 | 48 | ||
| 65 | 290 | 180 | 145 | 120 | 18 | 3 | 4-φ18 | 590 | 690 | 60 | |||
| 80 | 310 | 195 | 160 | 135 | 20 | 3 | 8-φ18 | 590 | 715 | 65 | |||
| 100 | 350 | 215 | 180 | 155 | 20 | 3 | 8-φ18 | 590 | 770 | 71 | |||
| 125 | 400 | 254 | 210 | 185 | 22 | 3 | 8-φ18 | 590 | 780 | 119 | |||
| 150 | 480 | 280 | 240 | 210 | 24 | 3 | 8-φ23 | 590 | 810 | 210 | |||
| 200 | 600 | 335 | 295 | 265 | 26 | 3 | 12-φ23 | 810 | 967 | 320 | |||
| 250 | 622 | 405 | 355 | 320 | 30 | 3 | 12-φ25 | 810 | 1143 | 550 | |||
| 300 | 698 | 460 | 410 | 375 | 30 | 4 | 12-φ25 | 830 | 1292 | 785 | |||
| 2.5 | 50 | 230 | 160 | 125 | 100 | 20 | 3 | 4-φ18 | 590 | 645 | 50 | ||
| 65 | 290 | 180 | 145 | 120 | 22 | 3 | 8-φ18 | 590 | 690 | 65 | |||
| 80 | 310 | 195 | 160 | 135 | 22 | 3 | 8-φ18 | 590 | 715 | 67 | |||
| 100 | 350 | 230 | 190 | 160 | 24 | 3 | 8-φ23 | 590 | 770 | 73 | |||
| 125 | 400 | 270 | 220 | 188 | 28 | 3 | 8-φ25 | 590 | 780 | 127 | |||
| 150 | 480 | 300 | 250 | 218 | 30 | 3 | 8-φ25 | 810 | 810 | 215 | |||
| 200 | 600 | 360 | 310 | 278 | 34 | 3 | 12-φ25 | 810 | 967 | 322 | |||
| 250 | 622 | 425 | 370 | 332 | 36 | 3 | 12-φ30 | 830 | 1143 | 585 | |||
| 300 | 698 | 485 | 430 | 390 | 40 | 4 | 16-φ30 | 830 | 1292 | 795 | |||
| 4 | 50 | 230 | 160 | 125 | 100 | 88 | 20 | 3 | 4 | 4-φ18 | 590 | 645 | 61 |
| 65 | 290 | 180 | 145 | 120 | 110 | 22 | 3 | 4 | 8-φ18 | 590 | 690 | 75 | |
| 80 | 310 | 195 | 160 | 135 | 121 | 22 | 3 | 4 | 8-φ18 | 590 | 715 | 84 | |
| 100 | 350 | 230 | 190 | 160 | 150 | 24 | 3 | 4.5 | 8-φ23 | 590 | 770 | 101 | |
| 125 | 400 | 270 | 220 | 188 | 176 | 28 | 3 | 4.5 | 8-φ25 | 810 | 782 | 207 | |
| 150 | 480 | 300 | 250 | 218 | 204 | 30 | 3 | 4.5 | 8-φ25 | 810 | 875 | 226 | |
| 200 | 600 | 375 | 320 | 282 | 260 | 38 | 3 | 4.5 | 12-φ30 | 810 | 1160 | 399 | |
| 6.4 | 50 | 300 | 175 | 135 | 105 | 88 | 26 | 3 | 4 | 4-φ23 | 590 | 710 | 64 |
| 65 | 340 | 200 | 160 | 130 | 110 | 28 | 3 | 4 | 8-φ23 | 590 | 750 | 77 | |
| 80 | 380 | 210 | 170 | 140 | 121 | 30 | 3 | 4 | 8-φ23 | 590 | 785 | 86 | |
| 100 | 430 | 250 | 200 | 168 | 150 | 32 | 3 | 4.5 | 8-φ25 | 810 | 837 | 171 | |
| 125 | 500 | 295 | 240 | 202 | 176 | 36 | 3 | 4.5 | 8-φ30 | 810 | 1031 | 243 | |
| 150 | 550 | 340 | 280 | 240 | 204 | 38 | 3 | 4.5 | 8-φ34 | 830 | 1066 | 296 | |
| 200 | 650 | 405 | 345 | 300 | 260 | 44 | 3 | 4.5 | 12-φ34 | 830 | 1213 | 420 | |
| 10 | 50 | 300 | 195 | 145 | 112 | 88 | 28 | 3 | 4 | 4-φ25 | 590 | 714 | 81 |
| 65 | 340 | 220 | 170 | 138 | 110 | 32 | 3 | 4 | 8-φ25 | 590 | 734 | 102 | |
| 80 | 380 | 230 | 180 | 148 | 121 | 34 | 3 | 4 | 8-φ30 | 810 | 847 | 175 | |
| 100 | 430 | 265 | 210 | 172 | 150 | 38 | 3 | 4.5 | 8-φ30 | 810 | 950 | 194 | |
| 125 | 500 | 310 | 250 | 210 | 176 | 42 | 3 | 4.5 | 8-φ34 | 830 | 1141 | 285 | |
| 150 | 550 | 350 | 290 | 250 | 204 | 46 | 3 | 4.5 | 12-φ34 | 830 | 1240 | 450 | |
| 200 | 650 | 430 | 360 | 312 | 260 | 54 | 3 | 4.5 | 12-φ4l | 830 | 1425 | 850 | |
| 16 | 50 | 300 | 215 | 165 | 132 | 88 | 36 | 3 | 4 | 8-φ25 | 590 | 562 | 92 |
| 65 | 340 | 245 | 190 | 152 | 110 | 44 | 3 | 4 | 8-φ30 | 810 | 743 | 165 | |
| 80 | 380 | 260 | 205 | 168 | 121 | 46 | 3 | 4 | 8-φ30 | 830 | 820 | 216 | |
| 100 | 430 | 300 | 240 | 200 | 150 | 48 | 3 | 4.5 | 8-φ34 | 830 | 935 | 238 | |





